बरेली के विकास को मिलेगी 'सुपरस्पीड'! Pilibhit Road Township के लिए भूमि क्रय कार्य शुरू
बरेली में विकास को गति मिलेगी क्योंकि पीलीभीत रोड टाउनशिप के लिए भूमि क्रय कार्य शुरू हो गया है। इस परियोजना से बरेली के बुनियादी ढांचे में सुधार होगा ...और पढ़ें
-1765468920286.webp)
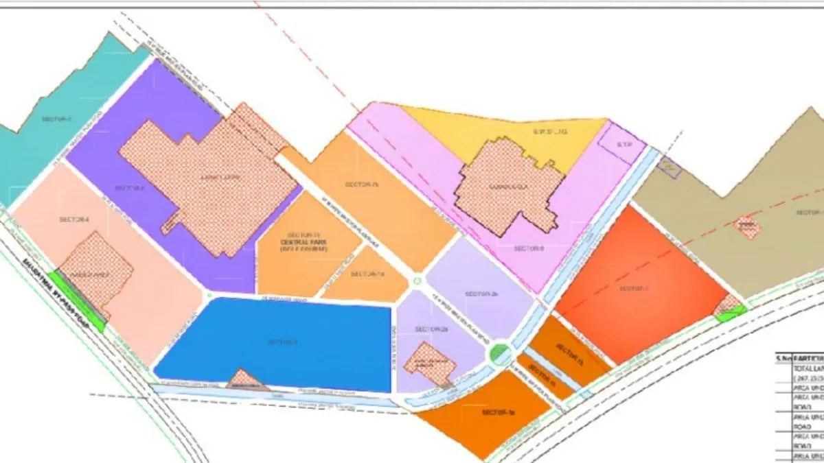
बीडीए की पीलीभीत रोड टाउनशिप
जागरण संवाददाता, बरेली। शहर के पीलीभीत रोड टाउनशिप के विकास के लिए बीडीए शुक्रवार से भूमि खरीदने का कार्य शुरू कर दिया है। पहले दिन दो किसानों की भूमि खरीदी और उनकी रजिस्ट्री कराई गई। नए प्रोजेक्ट के लिए बीडीए की ओर से सभी तैयारियां पूरी कर ली गई हैं। अधिकारियों के अनुसार, भूमि खरीद शुरू होने के साथ ही क्षेत्र में कैंप लगाकर रजिस्ट्री कराई जाएगी।
बीडीए ने रामगंगा नगर आवासीय योजना का विकास के बाद अब पीलीभीत बाइपास और बड़ा बाइपास रोड के मध्य नौ गांव में 267.14 हेक्टयर में नई आवासीय योजना विकसित करने का लक्ष्य रखा है। इसके लिए 2,275 किसानों से भूमि खरीदने की योजना है। 13 सेक्टरों में विकसित होने वाली योजना के लिए 90 प्रतिशत से अधिक किसानों ने भूमि खरीद की सहमति दे दी है।
इसके लिए बीडीए ने पहले चरण में सेक्टर वन-ए, वन-बी, टू-ए और टू-बी में भूमि खरीद शुरु करने जा रहा है। इसकी शुरुआत शुक्रवार से की जाएगी। पहले दिन दो किसानों की भूमि क्रय की जाएगी। इसके बाद सेक्टर तीन, चार, पांच, छह, सात-ए, सात-बी, आठ, नौ और दस को धरातल पर उतारा जाएगा।
इन नौ गांव के किसानों से खरीदी जाएगी भमि, जल्द होगा नामकरण
बीडीए की ओर से विकसित होने जा रही है परियोजना के लिए अडूपुरा जागीर, अहिलादपुर, आसपुर खूबचंद, कुम्हरा, कलापुर, बरकापुर, मोहरनियां, हरहरपुर व नवदिया कुर्मियान की कुल 267.1443 हेक्टेयर भूमि क्रय की जाएगी। यहां आमजन को 26.5 हजार प्रति वर्गमीटर की दर से भूखंड मिल सकेगा। परियोजना के नामकरण के लिए बीडीए की ओर से आमजन से सुझाव भी मांगा गया है।
बीडीए उपाध्यक्ष डा. मनिकंडन ए. के अनुसार, योजना का नाम सुझाने के लिए 400 से अधिक लोगों ने आवेदन किए हैं। जिस व्यक्ति का नाम सबसे अच्छा और सुंदर होगा उसे बीडीए की ओर से सम्मानित किया जाएगा। 50 हजार नकद इनाम देने के साथ सम्मान भी किया जाएगा। इसके लिए जल्द ही नामकरण की बात कही जा रही है।
2,800 करोड़ में विकसित हो रही नई योजना
बीडीए अधिकारियों के अनुसार, पीलीभीत रोड टाउनशिप के विकास में 2,800 करोड़ खर्च किया जाएगा। यहां आमजन को प्रति वर्गमीटर 26.5 हजार प्रतिवर्गमीटर में भूखंड उपलब्ध हो सकेगा। रामगंगा नगर आवासीय योजना के बाद पीलीभीत बाइपास रोड पर विकसित होने जा रही है यह योजना अब तक की सबसे दूसरी बड़ी टाउनशिप होगी। यहां भूमि खरीद के साथ ही आंतरिक एवं बाहरी विकास पर करीब 2,800 करोड़ खर्च होने की संभावना है।
सड़क, अस्पताल, स्टेडियम समेत होंगी सभी सुविधाएं
पीलीभीत बाइपास रोड टाउनशिप में 18 मीटर से 45 मीटर चौड़ी सड़कें, अस्पताल, स्कूल-कालेज, स्पोर्ट्स स्टेडियम, पार्क, माल व अन्य सामुदायिक सुविधाओं के विकास की भी कार्ययोजना बनाई गई। दिल्ली-लखनऊ राष्ट्रीय राजमार्ग और एयरपोर्ट के पास विकसित होने जा रही योजना के सफलता को लेकर बीडीए के अधिकारी उत्साहित नजर आ रहे हैं।
रामगंगा नगर, ग्रेटर बरेली के बाद अब पीलीभीत रोड टाउनशिप के विकास की योजना है। इसके लिए सहमति देने वाले किसानों से भूमि खरीदने का कार्य शुरू कर दिया गया है। दो किसानों से रजिस्ट्री कराई गई है यह टाउनशिप शहर के विकास को गति देने के साथ आमजन को सस्ते दर में भूखंड एवं घर का सपना भी साकार करेगा।
- डा. मनिकंडन ए., बीडीए उपाध्यक्ष
यह भी पढ़ें- Next Big Project: पीलीभीत रोड पर ₹300 करोड़ की लागत से BDA की भव्य टाउनशिप, जानिए पहले चरण की पूरी डिटेल!

कमेंट्स
सभी कमेंट्स (0)
बातचीत में शामिल हों
कृपया धैर्य रखें।